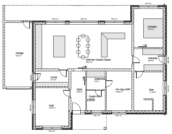
Wohnen auf einer Ebene, kurze Wege und ein Höchstmaß an Komfort:
Ein Bungalow von EBL steht für entspanntes, modernes Wohnen ohne Treppen. Der offene Grundriss, großzügige Fensterflächen und die direkte Verbindung zum Garten schaffen ein angenehmes Wohngefühl für jede Lebensphase. Verwirklichen Sie Ihren persönlichen Wohntraum und entdecken Sie unsere vielseitigen Bungalow-Konzepte – funktional, zeitlos und individuell planbar. Bei EBL finden Sie genau das Zuhause, das zu Ihnen und Ihren Vorstellungen passt.
Individuelle & flexible Grundrisse
Moderne Wohnkonzepte
Klassisches Design
ab 120 m²
Flachdach o. Walmdach 25°
Wohnen auf einer Ebene, kurze Wege und ein Höchstmaß an Komfort:
Ein Bungalow von EBL steht für entspanntes, modernes Wohnen ohne Treppen. Der offene Grundriss, großzügige Fensterflächen und die direkte Verbindung zum Garten schaffen ein angenehmes Wohngefühl für jede Lebensphase. Verwirklichen Sie Ihren persönlichen Wohntraum und entdecken Sie unsere vielseitigen Bungalow-Konzepte – funktional, zeitlos und individuell planbar. Bei EBL finden Sie genau das Zuhause, das zu Ihnen und Ihren Vorstellungen passt.
Individuelle & flexible Grundrisse
Moderne Wohnkonzepte
Klassisches Design
ab 120 m²
Flachdach o. Walmdach 25°





